Capannone in vendita

Dresano, Via delle Industrie
€ 235.000
Prezzo aggiornato
4 locali 4 locali
500 Mq 500 Mq
3 bagni 3 bagni

Capannone in vendita

Dresano, Via delle Industrie

Descrizione annuncio

COSA SAPERE DELL'IMMOBILE

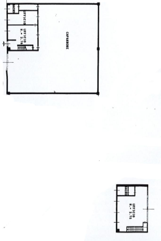
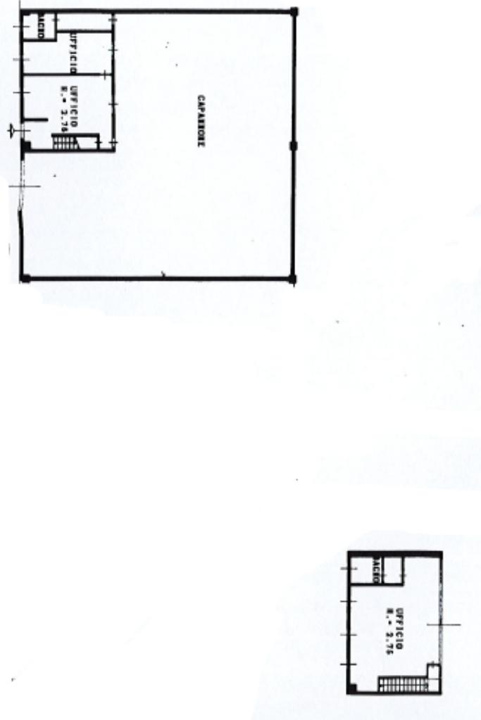
Il capannone proposto in vendita a reddito dispone di una superficie interna di circa 500 metri quadrati con annessa area esterna in condivisione di circa 1.500 metri quadrati.

DESCRIZIONE E PARTICOLARITA'

Il capannone proposto in vendita a reddito dispone di una superficie interna calpestabile di circa 500 metri quadrati disposti su due livelli così strutturati:

Il piano terra, accessibile tramite un portone di 4,5 metri, affaccia su 400 metri quadrati di capannone industriale disposti lungo un’unica campata libera da pilastri, avente 6,5 metri di altezza (5,5 metri sotto trave). Sempre su questo livello troviamo poi circa 50 mq adibiti a spazio direzionale, nonché due servizi igienici privati rispettivamente uno per lo spazio direzionale e uno per l’area industriale, quest’ultimo dotato di comode docce.A seguire al primo piano troviamo circa 50 metri quadrati anch’essi adibiti a spazio direzionale, dotati di un comodo servizio igienico privato.

Il solo spazio direzionale è dotato degli impianti di riscaldamento e condizionamento, che garantiscono comfort in ogni stagione.

L’intera struttura è dotata di un impianto elettrico da 100 kW e di un impianto di illuminazione.

Completa la soluzione un impianto di sicurezza, composto da un sistema d’allarme integrato con videosorveglianza, illuminazione e uscite di emergenza, progettato per garantire la massima tutela di persone e beni.

L’immobile risulta possedere tetto in eternit.

Esternamente possiede 1.500 metri quadrati di area esterna in condivisione recintata, dispone inoltre di un accesso e un passo carraio.

UBICAZIONE E CONTESTO

Il capannone è ubicato nella zona industriale-residenziale del comune di Dresano, è facilmente raggiungibile in auto data la vicinanza alla strada provinciale 159 che si collega ai paesi limitrofi, dispone inoltre di circa 20 posti auto PUBBLICI nelle immediate VICINANZE.

Mostra tutto

Nelle vicinanze

Trasporto pubblico Trasporto pubblico
Trasporto pubblico
680 m
Scuole Scuole
Scuole
660 m
Scuola Secondaria di Primo Grado Eugenio Curiel
1,6 Km
Scuola Primaria Giosuè Carducci
1,6 Km
Scuola elementare Oreste Cannette
2,2 Km
Istituto comprensivo Paolo Frisi
2,9 Km
Farmacia Farmacia
Farmacia
2,1 Km
Ospedali Ospedali
Presidio Ospedaliero di Vizzolo Predabissi
1,8 Km
Supermercati Supermercati
Alimentari e Prodotti Giardinaggio
1,3 Km
Carrefour
2,2 Km
Lidl
2,5 Km
Carrefour Market
3,0 Km
Negozi Negozi
Market Il Corallo
2,1 Km
Negozi
2,9 Km
Bar Bar
Bar
1,6 Km
Bar Roma
2,1 Km
Caffè Centrale
2,9 Km
Ristoranti Ristoranti
Osteria del Ponte
1,6 Km
Ristoranti
1,8 Km
Trattoria Monnalisa
2,0 Km
Trattoria Calvenzanino
2,0 Km
Soft Sushi
2,6 Km
Mostra tutto

Caratteristiche

Rif.:
61141880
Piano:
1 di 1 (Piano terra)
Posti auto:
20
Condizionamento:
Autonomo
Ascensore:
No
Riscaldamento:
Autonomo
Mostra tutto
Prezzo Prezzo
€ 235.000
Rata mutuo Rata mutuo
€ 1.107 / mese
Spese annue Spese annue
€ 700
Proponi il tuo prezzoProponi il tuo prezzo

Classe Energetica

C
C
C
C
C
C
C
C
C
EP globale non rinnovabile:
256.37 kW h/m² anno
EP globale rinnovabile:
256.37 kW h/m² anno
EP invernale del fabbricato:
EP estiva del fabbricato:
Anno di costruzione:
1990
Riscaldamento:
Autonomo
Tipo impianto:
Ad aria
Tipo alimentazione:
Aria

Prezzo ridotto di €1 (10%%)

Ti interessa visionare l'immobile?

Fissa un appuntamento  Fissa un appuntamento

Richiedi informazioni

Clicca su Leggi per aprire l'informativa
* Questi campi sono obbligatori

Calcola il tuo mutuo

Semplice e senza impegno
Anticipo

( % )
Mutuo

( % )

pochi semplici passi

inserisci i tuoi dati
Questionario completato
Grazie per aver richiesto un appuntamento senza impegno con un nostro Consulente del Credito e Assicurativo.

Hai inserito correttamente tutti i dati necessari e a breve riceverai una e-mail con un link da convalidare per inviare i tuoi dati.
Affiliato
Industriale Ambrogio Srl
Via A. Cechov, 3 20098 San Giuliano Milanese (MI)

Il nostro staff


  • Leonardo Ghiani
    Responsabile

  • Denise Santostefano
    Coordinatrice

  • Mirko Francesco Santostefano
    Collaboratore

  • Alexandru George Receanu
    Affiliato
Via A. Cechov, 3 20098 San Giuliano Milanese (MI)
Zona: San Giuliano Milanese
Mostra su mappa
Affiliato
Industriale Ambrogio Srl
Via A. Cechov, 3 20098 San Giuliano Milanese (MI)

2026 Tecnocasa Franchising S.p.A. - P. IVA 08365160152 - Via Monte Bianco 60/A 20089 Rozzano (MI). Ogni agenzia ha un proprio titolare ed è autonoma. Privacy policy | Policy utilizzo | Cookie policy