Laboratorio in affitto

Locate Triulzi, Via cristina belgioioso
€ 1.100 / mese
3 locali 3 locali
140 Mq 140 Mq
1 bagno 1 bagno

Laboratorio in affitto

Locate Triulzi, Via cristina belgioioso

Descrizione annuncio

COSA SAPERE DELL'IMMOBILE

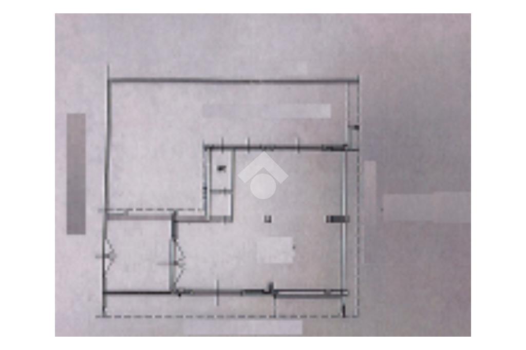
Laboratorio proposto in locazione dispone di una superficie interna di circa 160 metri quadrati con annessa area esterna di circa 20 metri quadrati.

DESCRIZIONE E PARTICOLARITA'

Laboratorio proposto in locazione si sviluppa su un unico livello al piano terra, con una superficie complessiva di 160 metri quadrati così disposti: 140 metri quadrati di laboratorio e 20 metri quadrati adibiti a spazio direzionale.

Il tutto è accessibile tramite un portone di circa 3,7 metri che affaccia su l’unica campata presente, libera da pilastri, e avente 4 metri di altezza.

L'immobile è dotato di predisposizioni per gli impianti elettrico e di illuminazione, oltre a essere fornito di un impianto di allarme, garantendo così buoni standard di sicurezza.

Inoltre dispone di un servizio igienico privato con annessa doccia

Esternamente possiede 20 metri quadrati di area esterna recintata.

UBICAZIONE E CONTESTO

Laboratorio è ubicato nella zona industriale del comune di Locate di Triulzi. Dispone circa 15 posti auto PUBBLICI nelle immediate VICINANZE.

Mostra tutto

Nelle vicinanze

Trasporto pubblico Trasporto pubblico
Locate Triulzi
Locate Triulzi
860 m
Trasporto pubblico
280 m
fermata 221
fermata 221
690 m
Pieve Emanuele
Pieve Emanuele
2,2 Km
Ricariche auto elettriche Ricariche auto elettriche
Scalo Milano
850 m
EnelX EVA+ Locate di Triulzi Shopping Village
1,3 Km
U2 Supermercato Opera | EnelX
2,1 Km
COOP Opera
2,2 Km
Scuole Scuole
Scuola Media Statale A. Locatelli
590 m
Scuole
660 m
Scuola Primaria Don Milani
820 m
Scuola elementare Luigi Gemelli
1,8 Km
Scuola media
1,9 Km
Farmacia Farmacia
Farmacia Dottor Binotti
570 m
Dott.ssa Federica Belloni
1,9 Km
Farmacia comunale 1
2,1 Km
Farmacia comunale 2
2,3 Km
Farmacia
2,7 Km
Supermercati Supermercati
Carrefour Express
750 m
Simply Market
1,9 Km
Eurospin
2,0 Km
U2
2,1 Km
Tigotà
2,2 Km
Negozi Negozi
Negozi
780 m
Orme
2,0 Km
Macelleria salumeria minimarket
2,3 Km
Pasticceria
2,3 Km
Il Pane dei Pini
2,4 Km
Bar Bar
bar colonne
660 m
Bar
900 m
Roby's Bar
1,9 Km
Il Bar dei Pini
2,3 Km
Bar Cadorna
3,0 Km
Ristoranti Ristoranti
Grass de Rost
720 m
Pizzeria mare e monti
790 m
Doppio Malto
1,3 Km
La Chimera
2,2 Km
Pizzeria
2,3 Km
Mostra tutto

Caratteristiche

Rif.:
61148217
Piano:
Terra di 1
Totale piani:
1
Posti auto:
20
Condizionamento:
Assente
Ascensore:
No
Mostra tutto
Prezzo Prezzo
€ 1.100 / mese
Spese annue Spese annue
€ 0

Classe Energetica

Questo immobile è esente da classe energetica
Anno di costruzione:
1970
Riscaldamento:
Assente

Ti interessa visionare l'immobile?

Fissa un appuntamento  Fissa un appuntamento

Richiedi informazioni

Clicca su Leggi per aprire l'informativa
* Questi campi sono obbligatori
Affiliato
Industriale Ambrogio Srl
Via A. Cechov, 3 20098 San Giuliano Milanese (MI)

Il nostro staff


  • Leonardo Ghiani
    Collaboratore

  • Denise Santostefano
    Coordinatrice

  • Mirko Francesco Santostefano
    Collaboratore

  • Alexandru George Receanu
    Affiliato
Via A. Cechov, 3 20098 San Giuliano Milanese (MI)
Zona: San Giuliano Milanese
Mostra su mappa
Affiliato
Industriale Ambrogio Srl
Via A. Cechov, 3 20098 San Giuliano Milanese (MI)

2025 Tecnocasa Franchising S.p.A. - P. IVA 08365160152 - Via Monte Bianco 60/A 20089 Rozzano (MI). Ogni agenzia ha un proprio titolare ed è autonoma. Privacy policy | Policy utilizzo | Cookie policy