Negozio in vendita

Melegnano, Via lombardia
€ 495.000
3 locali 3 locali
350 Mq 350 Mq
4 bagni 4 bagni

Negozio in vendita

Melegnano, Via lombardia

Descrizione annuncio

COSA SAPERE DELL'IMMOBILE

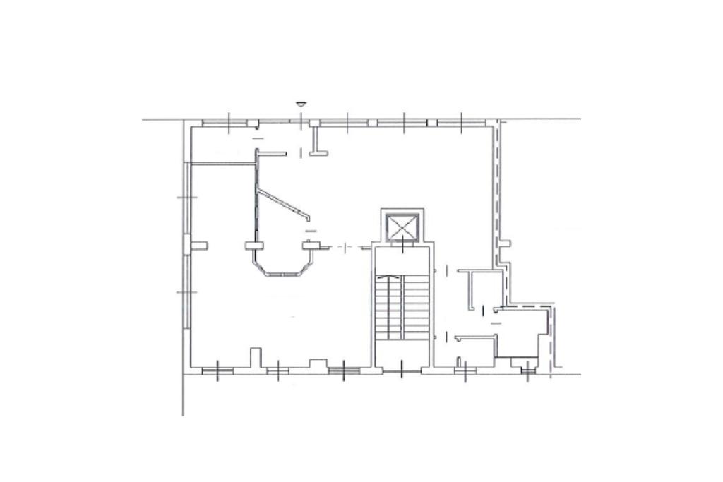
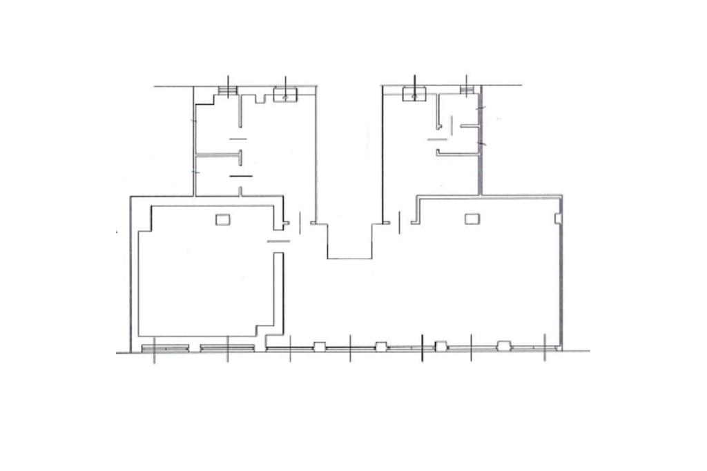
Proponiamo in vendita tre negozi per una totalità di circa 350 metri quadrati, situati al piano terra di una palazzina di otto livelli.

DESCRIZIONE E PARTICOLARITA'

I negozi proposti in vendita hanno una superficie totale di 350 metri quadrati, si trovano al piano terra di una palazzina di otto livelli e sono così disposti:

il primo negozio di circa 135 metri quadrati è composto da un apio openspace ben illuminato, data la presenza di sette ampie vetrate. È dotato di impianti elettrici e di illuminazione, oltre a un sistema di riscaldamento e condizionamento tramite split che rendono l’ambiente confortevole in ogni stagione. Dispone inoltre di ben tre comodi servizi igienici privati e un pratico doppio ingresso, che lo rende facilmente accessibileil secondo negozio di circa 125 metri quadrati dotato anch’esso di ampie vetrate, in questo caso 6 che, insieme alla sua ottimale posizione ad angolo, renderanno la vostra attività ben visibile ai passanti. È inoltre dotato di impianti elettrici e di illuminazione, oltre a un sistema di riscaldamento tramite radiatori. Dispone anch’esso di ben tre comodi servizi igienici privati e un pratico doppio ingresso, che lo rende facilmente accessibile.Infine il terzo locale di circa 90 metri quadrati e dotato di tre ampie vetrate, è composto da un’unica ampia stanza open-space, che offre ampie possibilità di personalizzazione degli spazi. Dispone poi degli impianti elettrici e di illuminazione, oltre a un sistema di riscaldamento tramite radiatori. Completano la soluzione un comodo servizio igienico privato e un pratico doppio ingresso che lo rende facilmente accessibile

Tutti e tre i negozio possiedono un’altezza interna di circa tre metri e sono dotati di pratiche saracinesche di tipo manuale che garantiscono una maggiore sicurezza dei locali.

UBICAZIONE E CONTESTO

La struttura sorge nel Comune di Melegnano nella zona residenziale e possiede circa 20 posti auto PUBBLICI nelle immediate vicinanze.

Mostra tutto

Nelle vicinanze

Trasporto pubblico Trasporto pubblico
stazione di Melegnano
stazione di Melegnano
760 m
Melegnano - Viale Repubblica FS (dir. Milano)
Melegnano - Viale Repubblica FS (dir. Milano)
870 m
Melegnano - Viale Repubblica FS (dir. S.Angelo)
Melegnano - Viale Repubblica FS (dir. S.Angelo)
930 m
Scuole Scuole
Scuole
240 m
Istituto comprensivo G. Dezza
970 m
ITIS
1,0 Km
G. Dezza
1,5 Km
Istituto comprensivo Paolo Frisi
1,5 Km
Farmacia Farmacia
Farmacia
690 m
Farmacia Comunale 4
2,5 Km
Ospedali Ospedali
Presidio Ospedaliero di Vizzolo Predabissi
1,7 Km
Supermercati Supermercati
Lidl
540 m
Carrefour Market
1,4 Km
Carrefour
1,7 Km
Esselunga di San Giuliano Milanese
2,5 Km
Negozi Negozi
Negozi
720 m
nomecognome
750 m
MD
2,5 Km
Bar Bar
Caffè Centrale
590 m
Uva Viva
770 m
Ristoranti Ristoranti
Pesca & Mangia
220 m
Taurasi
460 m
Ristoranti
470 m
Soft Sushi
480 m
La Rampina
670 m
Mostra tutto

Caratteristiche

Rif.:
61190819
Piano:
Terra di 8
Totale piani:
8
Posti auto:
20
Condizionamento:
Autonomo
Ascensore:
No
Mostra tutto
Prezzo Prezzo
€ 495.000
Rata mutuo Rata mutuo
€ 2.352 / mese
Spese annue Spese annue
€ 3.600
Proponi il tuo prezzoProponi il tuo prezzo

Classe Energetica

Questo immobile è esente da classe energetica
Anno di costruzione:
1994
Riscaldamento:
Autonomo
Tipo impianto:
A radiatori
Tipo alimentazione:
Metano

Ti interessa visionare l'immobile?

Fissa un appuntamento  Fissa un appuntamento

Richiedi informazioni

Clicca su Leggi per aprire l'informativa
* Questi campi sono obbligatori

Calcola il tuo mutuo

Semplice e senza impegno
Anticipo

( % )
Mutuo

( % )

pochi semplici passi

inserisci i tuoi dati
Questionario completato
Grazie per aver richiesto un appuntamento senza impegno con un nostro Consulente del Credito e Assicurativo.

Hai inserito correttamente tutti i dati necessari e a breve riceverai una e-mail con un link da convalidare per inviare i tuoi dati.
Affiliato
Industriale Ambrogio Srl
Via A. Cechov, 3 20098 San Giuliano Milanese (MI)

Il nostro staff


  • Leonardo Ghiani
    Responsabile

  • Denise Santostefano
    Coordinatrice

  • Mirko Francesco Santostefano
    Collaboratore

  • Alexandru George Receanu
    Affiliato
Via A. Cechov, 3 20098 San Giuliano Milanese (MI)
Zona: San Giuliano Milanese
Mostra su mappa
Affiliato
Industriale Ambrogio Srl
Via A. Cechov, 3 20098 San Giuliano Milanese (MI)

2026 Tecnocasa Franchising S.p.A. - P. IVA 08365160152 - Via Monte Bianco 60/A 20089 Rozzano (MI). Ogni agenzia ha un proprio titolare ed è autonoma. Privacy policy | Policy utilizzo | Cookie policy