Ufficio in affitto

Melegnano, Via Morandi
€ 1.250 / mese
2 locali 2 locali
100 Mq 100 Mq
2 bagni 2 bagni

Ufficio in affitto

Melegnano, Via Morandi

Descrizione annuncio

COSA SAPERE DELL'IMMOBILE

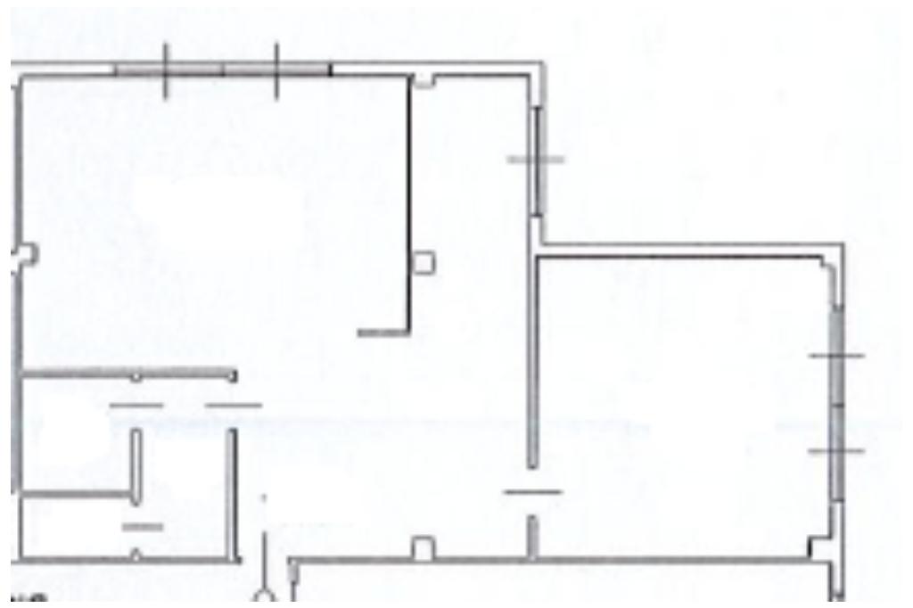
Proponiamo in affitto un ufficio di circa 100 metri quadrati, situato all’ultimo piano di una palazzina di tre livelli.

DESCRIZIONE E PARTICOLARITA'

L'ufficio proposto in locazione ha una superficie di circa 100 metri quadrati e si trova al terzo e ultimo piano di un palazzo di soli uffici di tre livelli, raggiungibile tramite comodo ascensore.

Quest’ultimo, accessibile tramite porta blindata che, insieme all’ascensore, rendono la struttura agevole e accessibile a persone con disabilità, il tutto è composto da due locali e due comodi servizi igienici privati (di cui uno a norma disabili), aventi un’altezza di circa 2,80 metri, data la presenza di controsoffittatura.

La struttura è completamento cablata e dotata di impianti elettrici e di illuminazione, oltre a un sistema di riscaldamento e condizionamento tramite fancoil, garantendo un confort ottimale in tutte le stagioni.

Completano la soluzione internet a banda larga e luci di emergenza.

UBICAZIONE E CONTESTO

L’ufficio sorge nel Comune di Melegnano nella zona industriale e possiede circa 20 posti auto PUBBLICI nelle immediate vicinanze e ben 2 posti auto privati.

Mostra tutto

Nelle vicinanze

Trasporto pubblico Trasporto pubblico
stazione di Melegnano
stazione di Melegnano
400 m
Melegnano - Viale Repubblica FS (dir. Milano)
Melegnano - Viale Repubblica FS (dir. Milano)
400 m
Melegnano - Viale Repubblica FS (dir. S.Angelo)
Melegnano - Viale Repubblica FS (dir. S.Angelo)
460 m
Ricariche auto elettriche Ricariche auto elettriche
Tesla Supercharger Milano - Hotel Ibis Styles Milano Melegnano
2,8 Km
Scuole Scuole
Scuole
520 m
Istituto comprensivo G. Dezza
670 m
ITIS
850 m
G. Dezza
1,3 Km
P. Frisi
1,4 Km
Farmacia Farmacia
Farmacia
790 m
Farmacia Comunale 4
2,8 Km
Ospedali Ospedali
Presidio Ospedaliero di Vizzolo Predabissi
2,1 Km
Supermercati Supermercati
Lidl
1,2 Km
Carrefour Market
1,3 Km
Carrefour
1,9 Km
Esselunga di San Giuliano Milanese
2,9 Km
Negozi Negozi
nomecognome
600 m
Negozi
660 m
MD
2,9 Km
Bar Bar
Uva Viva
590 m
Caffè Centrale
720 m
Ristoranti Ristoranti
Tourlé Pizza Food & Fun
190 m
Locanda del Perdono
640 m
Osteria del Portone
700 m
La Dolce Pizza
740 m
Pesca & Mangia
960 m
Mostra tutto

Caratteristiche

Rif.:
61148292
Piano:
3 di 3 (ultimo Piano)
Posti auto:
20
Condizionamento:
Autonomo
Ascensore:
No
Riscaldamento:
Autonomo
Mostra tutto
Prezzo Prezzo
€ 1.250 / mese
Spese annue Spese annue
€ 1.000

Classe Energetica

Questo immobile è esente da classe energetica
Anno di costruzione:
1980
Riscaldamento:
Autonomo
Tipo impianto:
Ad aria
Tipo alimentazione:
Altro

Ti interessa visionare l'immobile?

Fissa un appuntamento  Fissa un appuntamento

Richiedi informazioni

Clicca su Leggi per aprire l'informativa
* Questi campi sono obbligatori
Affiliato
Industriale Ambrogio Srl
Via A. Cechov, 3 20098 San Giuliano Milanese (MI)

Il nostro staff


  • Leonardo Ghiani
    Collaboratore

  • Denise Santostefano
    Coordinatrice

  • Mirko Francesco Santostefano
    Collaboratore

  • Alexandru George Receanu
    Affiliato
Via A. Cechov, 3 20098 San Giuliano Milanese (MI)
Zona: San Giuliano Milanese
Mostra su mappa
Affiliato
Industriale Ambrogio Srl
Via A. Cechov, 3 20098 San Giuliano Milanese (MI)

2025 Tecnocasa Franchising S.p.A. - P. IVA 08365160152 - Via Monte Bianco 60/A 20089 Rozzano (MI). Ogni agenzia ha un proprio titolare ed è autonoma. Privacy policy | Policy utilizzo | Cookie policy