 
			 
				COSA SAPERE DELL'IMMOBILE
Il capannone proposto in locazione dispone di una superficie interna di circa 340 metri quadrati con annessa area esterna di circa 320 metri quadrati.
DESCRIZIONE E PARTICOLARITA'
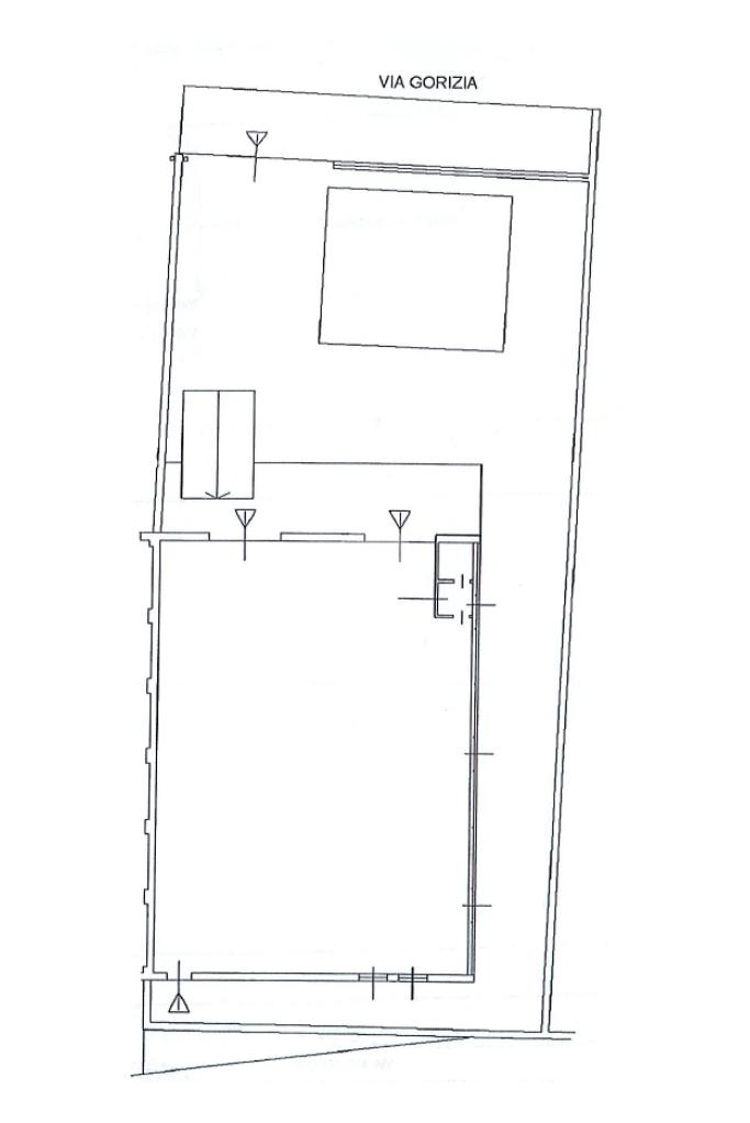
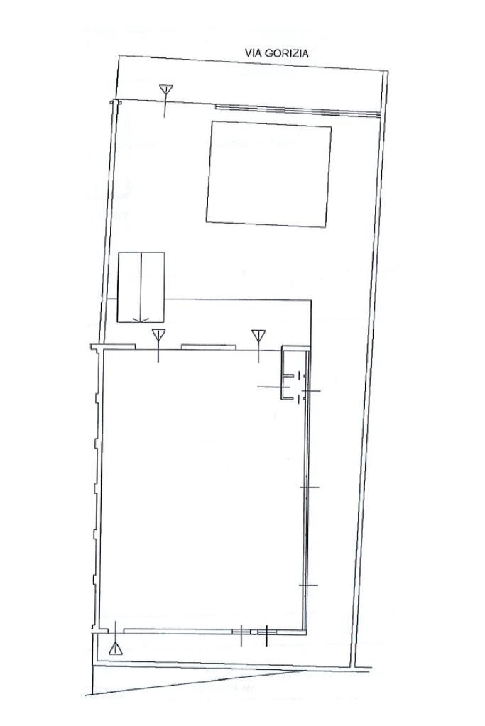
Il capannone proposto in locazione si sviluppa su un unico livello al piano terra, con una superficie complessiva di 340 metri quadrati di cui 270 metri quadrati di capannone industriale e 70 metri quadrati adibiti a magazzino.
La struttura si articola su due campate con un’altezza interna di 14 metri, di cui 6 metri sotto trave, e dispone di un carroponte che ne facilita l’utilizzo per attività industriali o di magazzinaggio. L’accesso avviene tramite un cancello di 5 metri e un portone di 4 metri di altezza, che consentono l’ingresso agevole anche a mezzi pesanti, e possiede inoltre un accesso e un passo carrabile.
Completano la soluzione gli impianti elettrico e d'illuminazione, nonché di un comodo servizio igienico privato.
Il lotto possiede inoltre 200 metri quadrati di area esterna recintata, e risulta possedere tetto in Eternit.
UBICAZIONE E CONTESTO
Il capannone è ubicato nella zona industriale-commerciale del comune di San Giuliano Milanese ed è facilmente raggiungibile in auto data la vicinanza alla strada statale 9 (Via Emilia), dispone circa 10 posti auto PUBBLICI nelle immediate VICINANZE.
Ti interessa visionare l'immobile?