Capannone in vendita

San Giuliano Milanese, Via dei Mille
€ 770.000
7 locali 7 locali
1150 Mq 1150 Mq
4 bagni 4 bagni

Capannone in vendita

San Giuliano Milanese, Via dei Mille

Descrizione annuncio

COSA SAPERE DELL'IMMOBILE

Il capannone proposto in vendita dispone di una superficie interna di circa 1.150 metri quadrati con annessa area esterna di circa 1.200 metri quadrati.

L’immobile sarà liberato e disponibile entro otto mesi dalla data di accettazione della proposta di acquisto.

DESCRIZIONE E PARTICOLARITA'

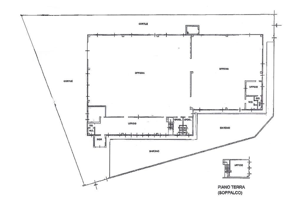
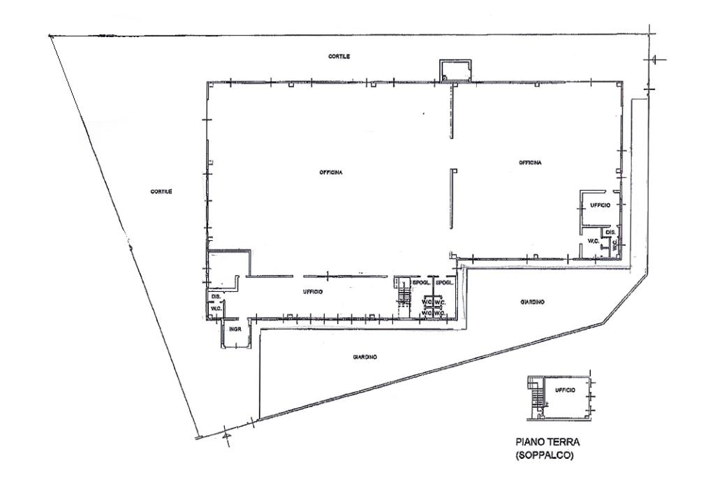
Il capannone proposto in vendita dispone di una superficie interna calpestabile di circa 1.150 metri quadrati disposti su due livelli così strutturati:

Il piano terra, accessibile tramite un portone di 4,5 metri, affaccia su 1.000 metri quadrati di capannone industriale disposti lungo due campate divise da pilastri, aventi 5,8 metri di altezza (4,75 metri sotto trave). Sempre su questo livello troviamo circa 100 mq adibiti a spazio direzionale, dispone inoltre di quattro servizi igienici privati dotati di un comodo spogliatoio e un’area adibita a mensa.A seguire troviamo un piano soppalcato di circa 50 metri quadrati anch’essi adibiti a spazio direzionale.

L’intera struttura è dotata di impianto di riscaldamento e condizionamento, che garantisce comfort in ogni stagione, e di un impianto fotovoltaico da 100 kW che contribuisce all’efficienza energetica e alla sostenibilità ambientale.

Completa la soluzione un impianto di sicurezza, composto da un sistema d’allarme integrato con videosorveglianza, illuminazione e uscite di emergenza, progettato per garantire la massima tutela di persone e beni. L’immobile è inoltre dotato di un efficiente impianto antincendio a idranti, corredato da porta tagliafuoco e uscita di emergenza, in grado di garantire elevati livelli di protezione e conformità alle normative in materia di sicurezza.

Esternamente possiede 1.200 metri quadrati di area esterna recintata, dispone di due accessi e passi carrai.

UBICAZIONE E CONTESTO

Il capannone è ubicato nella zona industriale-commerciale del comune di San Giuliano Milanese ed è facilmente raggiungibile in auto data la vicinanza alla strada statale 9 (Via Emilia), dispone circa 20 posti auto PUBBLICI nelle immediate VICINANZE.

Mostra tutto

Nelle vicinanze

Trasporto pubblico Trasporto pubblico
Trasporto pubblico
910 m
Stazione di San Giuliano Milanese (San Giuliano M.)
Stazione di San Giuliano Milanese (San Giuliano M.)
1,0 Km
stazione di San Giuliano Milanese
stazione di San Giuliano Milanese
1,0 Km
stazione di Borgolombardo
stazione di Borgolombardo
2,5 Km
Scuole Scuole
Scuole
520 m
Scuola secondaria Don Milani
1,2 Km
Scuola Primaria “Guido Cavalcanti”
1,3 Km
Scuola elementarre Martin Luther King
3,0 Km
Farmacia Farmacia
Farmacia Dott. Lomolino
290 m
Farmacia Comunale 4
1,2 Km
Farmacia Comunale 3
1,3 Km
Farmacia Comunale 1
1,4 Km
Serenella
1,5 Km
Ospedali Ospedali
Istituto Policlinico San Donato
2,8 Km
Supermercati Supermercati
Lidl
860 m
Esselunga di San Giuliano Milanese
1,2 Km
Carrefour Market
1,4 Km
Carrefour
1,7 Km
Unes
2,3 Km
Negozi Negozi
Non solo pane
290 m
MD
1,1 Km
Negozi
1,2 Km
Punto 2 Zero
1,3 Km
Sonia Minimarket
1,3 Km
Bar Bar
Anextesia
2,5 Km
Ristoranti Ristoranti
Trattoria La Ruota
980 m
Sakura
1,1 Km
La dolce vita
1,1 Km
La Terrazza
1,2 Km
Pizza Kebap
1,5 Km
Mostra tutto

Caratteristiche

Rif.:
61139657
Piano:
1 di 1 (Piano su più livelli)
Posti auto:
20
Condizionamento:
Autonomo
Ascensore:
No
Riscaldamento:
Autonomo
Mostra tutto
Prezzo Prezzo
€ 770.000
Rata mutuo Rata mutuo
€ 3.635 / mese
Spese annue Spese annue
€ 0
Proponi il tuo prezzoProponi il tuo prezzo

Classe Energetica

Questo immobile è esente da classe energetica
Anno di costruzione:
1975
Riscaldamento:
Autonomo
Tipo impianto:
Ad aria
Tipo alimentazione:
Pannelli

Ti interessa visionare l'immobile?

Fissa un appuntamento  Fissa un appuntamento

Richiedi informazioni

Clicca su Leggi per aprire l'informativa
* Questi campi sono obbligatori

Calcola il tuo mutuo

Semplice e senza impegno
Anticipo

( % )
Mutuo

( % )

pochi semplici passi

inserisci i tuoi dati
Questionario completato
Grazie per aver richiesto un appuntamento senza impegno con un nostro Consulente del Credito e Assicurativo.

Hai inserito correttamente tutti i dati necessari e a breve riceverai una e-mail con un link da convalidare per inviare i tuoi dati.
Affiliato
Industriale Ambrogio Srl
Via A. Cechov, 3 20098 San Giuliano Milanese (MI)

Il nostro staff


  • Leonardo Ghiani
    Collaboratore

  • Denise Santostefano
    Coordinatrice

  • Mirko Francesco Santostefano
    Collaboratore

  • Alexandru George Receanu
    Affiliato
Via A. Cechov, 3 20098 San Giuliano Milanese (MI)
Zona: San Giuliano Milanese
Mostra su mappa
Affiliato
Industriale Ambrogio Srl
Via A. Cechov, 3 20098 San Giuliano Milanese (MI)

2025 Tecnocasa Franchising S.p.A. - P. IVA 08365160152 - Via Monte Bianco 60/A 20089 Rozzano (MI). Ogni agenzia ha un proprio titolare ed è autonoma. Privacy policy | Policy utilizzo | Cookie policy