 
			 
				COSA SAPERE DELL'IMMOBILE
Proponiamo in locazione una soluzione composta da un negozio di circa 175 metri quadrati, disposti su due livelli di una palazzina di tre piani.
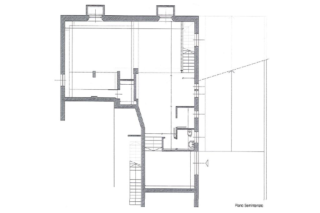
DESCRIZIONE E PARTICOLARITA'
La location sviluppa la sua metratura su due livelli così disposti:
Al piano terra si trova un ampio locale commerciale di ca 65 metri quadrati e avente 3 metri di altezza, attualmente adibito a Centro servizi e negozio di cartoleria con annesso ufficio con bagno. La proprietà vanta tre ampie vetrine, lato via Emilia, che conferiscono luminosità all'ambiente e assicurano una visibilità ottimale per la vostra attività. L'ampia zona espositiva permette di attirare l'attenzione dei passanti, rendendo il negozio accessibile ai passanti e ben visibile. Inoltre, il locale è dotato di saracinesche automatiche, impianto di videosorveglianza direttamente comunicante con le Forze dell’Ordine e allarme perimetrale che garantiscono sicurezza e praticità.Troviamo poi un piano seminterrato di ca 110 metri quadrati suddiviso in tre locali aventi 3 metri di altezza e una comoda entrata privata, nonché un collegamento interno al piano superiore. Anche quest’ultimo piano è dotato di un comodo servizio igienico privato.
L’edificio è pensato per offrire comfort e sicurezza in ogni momento. È infatti dotato di impianti di riscaldamento e climatizzazione tramite split, mentre l’impianto elettrico integra illuminazione, sistema d’allarme e videosorveglianza.
A completare la soluzione troviamo la ventilazione meccanica, il sistema antincendio con rete idranti, le luci di emergenza e l’impianto di aspirazione fumi, soluzioni che garantiscono un ambiente affidabile e sempre protetto. L’intera struttura è di recente ristrutturazione con impiantistiche moderne e di nuova generazione, dotato anche di impianti di filodiffusione sonora su entrambe i piani.
UBICAZIONE E CONTESTO
La struttura sorge nel Comune di San Giuliano nella zona residenziale, si trova in una posizione strategica, dato il suo posizionamento ad angolo, ed è facilmente raggiungibile in auto. La vicinanza alla SS9 (Via Emilia) consente un comodo collegamento con i paesi limitrofi, e possiede circa 40 posti auto PUBBLICI.
Prezzo ridotto di €1 (8%%)
Ti interessa visionare l'immobile?