Negozio in affitto

San Giuliano Milanese, Via Cavour
1 locale 1 locale
110 Mq 110 Mq
1 bagno 1 bagno

Negozio in affitto

San Giuliano Milanese, Via Cavour

Descrizione annuncio

COSA SAPERE DELL'IMMOBILE

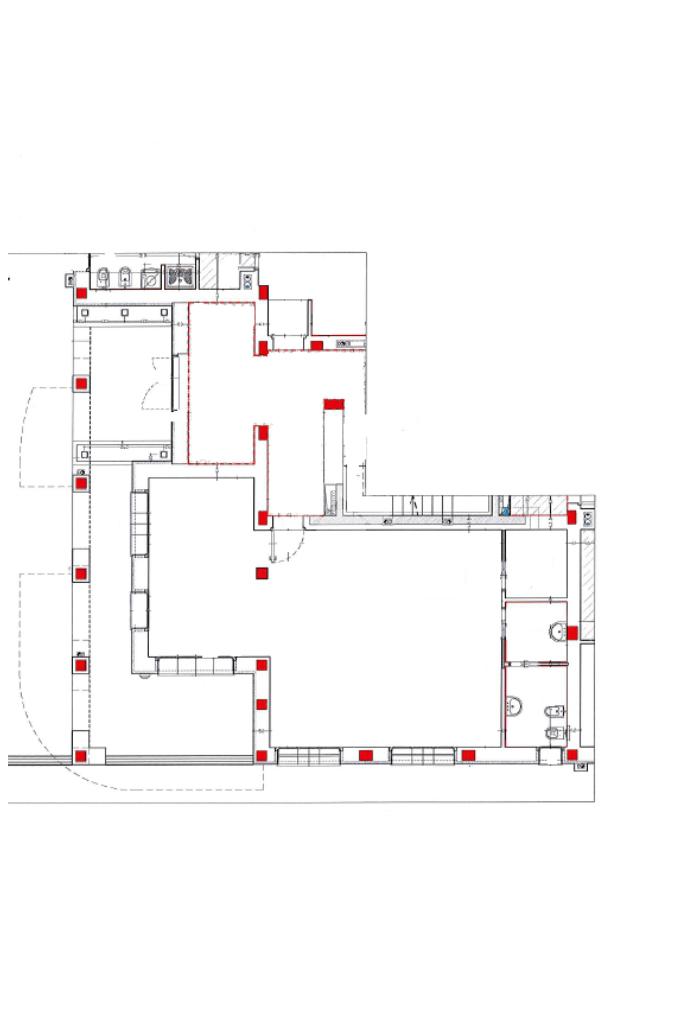
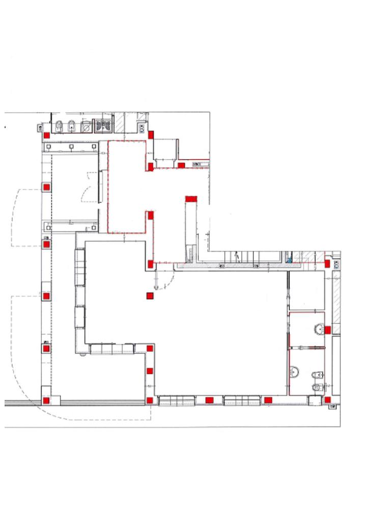
Proponiamo in affitto un negozio di circa 110 metri quadrati, situato al piano terra di una palazzina di sei livelli.

DESCRIZIONE E PARTICOLARITA'

Il negozio in locazione ha una superficie di circa 110 metri quadrati e si trova al piano terra di un palazzo di 6 piani. Quest’ultimo, con un’altezza interna di circa 3 metri, è composto da un’unica stanza open-space, offrendo ampie possibilità di personalizzazione degli spazi.

La struttura è completamente cablata e dotata di impianti elettrici e di illuminazione, oltre a un sistema di riscaldamento e condizionamento a pavimento, garantendo un comfort ottimale in tutte le stagioni. È presente anche una predisposizione per l’impianto di allarme e un impianto di ventilazione meccanica, che assicura una qualità dell’aria eccellente all’interno degli spazi.

L'immobile è caratterizzato da un doppio ingresso, che lo rende facilmente accessibile. Grazie alla sua posizione ad angolo, è ben visibile e facilmente raggiungibile, mentre la presenza di saracinesche automatiche garantisce sicurezza e praticità. Inoltre, è completamente accessibile alle persone con disabilità.

UBICAZIONE E CONTESTO

La struttura sorge nel Comune di San Giuliano Milanese nella zona residenziale e possiede circa 40 posti auto PUBBLICI nelle immediate vicinanze.

Mostra tutto

Nelle vicinanze

Trasporto pubblico Trasporto pubblico
Trasporto pubblico
90 m
Via Di Vittorio (Centro sportivo) (Certosa di San Donato)
Via Di Vittorio (Centro sportivo) (Certosa di San Donato)
870 m
stazione di Borgolombardo
stazione di Borgolombardo
960 m
stazione di San Giuliano Milanese
stazione di San Giuliano Milanese
1,1 Km
Ricariche auto elettriche Ricariche auto elettriche
OBI San Giuliano Milanese
2,1 Km
Eneldrive Parcheggio del Comune
2,3 Km
IKEA S. Giuliano Mil.
2,3 Km
Eneldrive Piazza della Pieve
2,3 Km
Eneldrive Torri Lombarde
2,5 Km
Scuole Scuole
Scuole
230 m
Scuola secondaria Don Milani
370 m
Scuola Primaria “Guido Cavalcanti”
700 m
Scuola elementarre Martin Luther King
1,4 Km
Scuola media Galileo Galilei
1,6 Km
Farmacia Farmacia
Farmacia Pellegrini Dr. Luca
210 m
Farmacia Comunale 3
480 m
Farmacia Comunale 1
480 m
Serenella
550 m
Farmacia Borgolombardo
710 m
Ospedali Ospedali
Istituto Policlinico San Donato
1,3 Km
Supermercati Supermercati
Carrefour Market
350 m
Esselunga
2,2 Km
Lidl
2,4 Km
Esselunga di San Giuliano Milanese
2,5 Km
Simply Market
2,6 Km
Negozi Negozi
Eurospin
440 m
Sonia Minimarket
440 m
Macelleria e minimarket
450 m
Panificio Pugliese
490 m
Banga Alimentari
510 m
Bar Bar
Anextesia
980 m
Quinta Pietra
2,5 Km
Bob Food and more
2,6 Km
Ristoranti Ristoranti
Pizza Kebap
540 m
La Lanterna
700 m
Trattoria La Ruota
970 m
Ristoranti
1,0 Km
Pizzeria ai due soli
1,4 Km
Mostra tutto

Caratteristiche

Rif.:
61144691
Totale piani:
6
Posti auto:
40
Condizionamento:
Autonomo
Ascensore:
No
Riscaldamento:
Autonomo
Mostra tutto
Prezzo Prezzo
€ 1.300 / mese
Spese annue Spese annue
€ 2.600
Anche in vendita a

Classe Energetica

Questo immobile è esente da classe energetica
Anno di costruzione:
2018
Riscaldamento:
Autonomo
Tipo impianto:
A pavimento
Tipo alimentazione:
Altro

Ti interessa visionare l'immobile?

Fissa un appuntamento  Fissa un appuntamento

Richiedi informazioni

Clicca su Leggi per aprire l'informativa
* Questi campi sono obbligatori
Affiliato
Industriale Ambrogio Srl
Via A. Cechov, 3 20098 San Giuliano Milanese (MI)

Il nostro staff


  • Leonardo Ghiani
    Collaboratore

  • Denise Santostefano
    Coordinatrice

  • Mirko Francesco Santostefano
    Collaboratore

  • Alexandru George Receanu
    Affiliato
Via A. Cechov, 3 20098 San Giuliano Milanese (MI)
Zona: San Giuliano Milanese
Mostra su mappa
Affiliato
Industriale Ambrogio Srl
Via A. Cechov, 3 20098 San Giuliano Milanese (MI)

2025 Tecnocasa Franchising S.p.A. - P. IVA 08365160152 - Via Monte Bianco 60/A 20089 Rozzano (MI). Ogni agenzia ha un proprio titolare ed è autonoma. Privacy policy | Policy utilizzo | Cookie policy