Negozio in vendita

San Giuliano Milanese, Via Cavour
2 locali 2 locali
140 Mq 140 Mq
1 bagno 1 bagno

Negozio in vendita

San Giuliano Milanese, Via Cavour

Descrizione annuncio

COSA SAPERE DELL'IMMOBILE

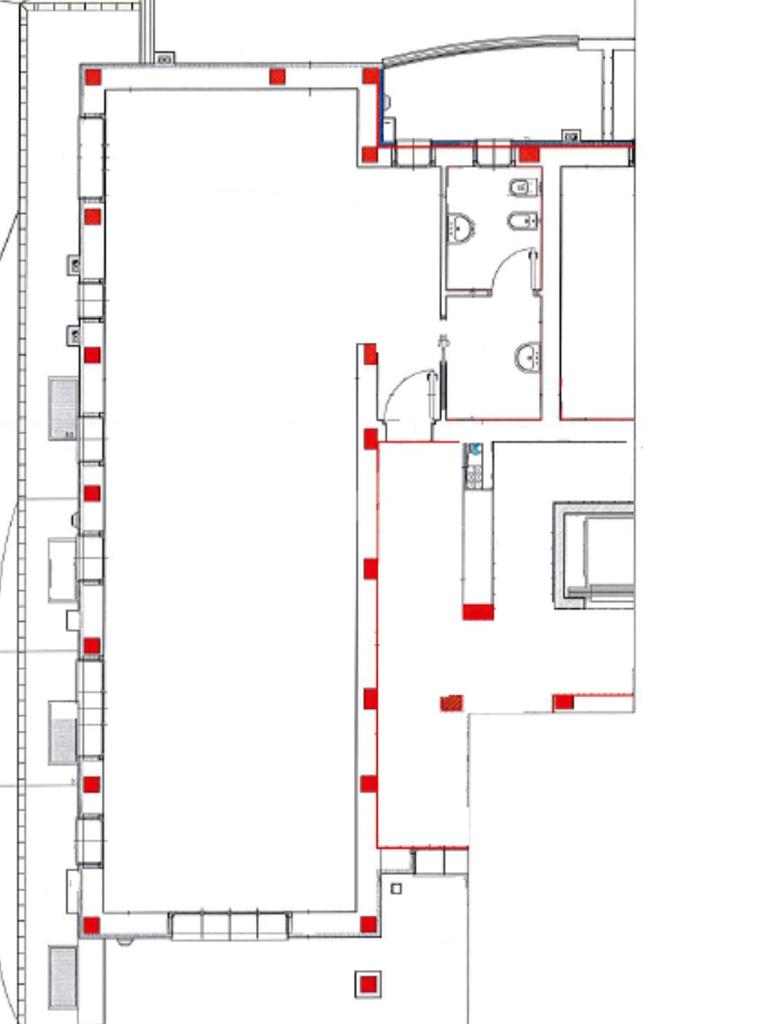
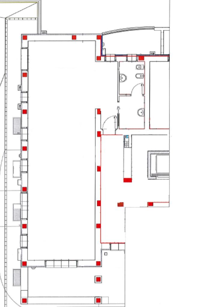
Proponiamo in vendita un negozio di circa 140 metri quadrati, situato al piano terra di una palazzina di sei livelli.

DESCRIZIONE E PARTICOLARITA'

Il negozio proposto in vendita ha una superficie di circa 140 metri quadrati e si trova al piano terra di un palazzo di sei piani. Quest’ultimo con un’altezza di circa 3 metri, è composto da due locali: una luminosa stanza principale e un’altra stanza, ideale per chi necessita un secondo ambiente separato.

La struttura è completamento cablata e dotata di impianti elettrici e di illuminazione, oltre a un sistema di riscaldamento e condizionamento a pavimento, garantendo un confort ottimale in tutte le stagioni, dispone inoltre di un servizio igienico privato.

È presente anche una predisposizione di impianto d’allarme e un impianto di ventilazione meccanica, che assicura una qualità dell’aria eccellente all’interno degli spazi.

L’immobile è caratterizzato da un doppio ingresso, che lo rende facilmente accessibile. Grazie alla sua posizione ad angolo, è ben visibile e facilmente raggiungibile.

Infine, con la presenza di saracinesche automatiche assicurano un elevato livello di sicurezza. Inoltre è completamente accessibile alle persone con disabilità

UBICAZIONE E CONTESTO

Il Negozio sorge nel Comune di San Giuliano Milanese nella zona residenziale e possiede circa 40 posti auto pubblici nelle immediate vicinanze.

Mostra tutto

Nelle vicinanze

Trasporto pubblico Trasporto pubblico
Trasporto pubblico
100 m
Via Di Vittorio (Centro sportivo) (Certosa di San Donato)
Via Di Vittorio (Centro sportivo) (Certosa di San Donato)
870 m
stazione di Borgolombardo
stazione di Borgolombardo
950 m
stazione di San Giuliano Milanese
stazione di San Giuliano Milanese
1,1 Km
Ricariche auto elettriche Ricariche auto elettriche
OBI San Giuliano Milanese
2,1 Km
Eneldrive Parcheggio del Comune
2,2 Km
IKEA S. Giuliano Mil.
2,3 Km
Eneldrive Piazza della Pieve
2,3 Km
Eneldrive Torri Lombarde
2,5 Km
Scuole Scuole
Scuole
230 m
Scuola secondaria Don Milani
380 m
Scuola Primaria “Guido Cavalcanti”
710 m
Scuola elementarre Martin Luther King
1,4 Km
Scuola media Galileo Galilei
1,6 Km
Farmacia Farmacia
Farmacia Pellegrini Dr. Luca
210 m
Farmacia Comunale 1
480 m
Farmacia Comunale 3
490 m
Serenella
550 m
Farmacia Borgolombardo
700 m
Ospedali Ospedali
Istituto Policlinico San Donato
1,3 Km
Supermercati Supermercati
Carrefour Market
350 m
Esselunga
2,2 Km
Lidl
2,4 Km
Esselunga di San Giuliano Milanese
2,5 Km
Simply Market
2,6 Km
Negozi Negozi
Eurospin
430 m
Macelleria e minimarket
450 m
Sonia Minimarket
450 m
Panificio Pugliese
480 m
Banga Alimentari
510 m
Bar Bar
Anextesia
970 m
Quinta Pietra
2,5 Km
Bob Food and more
2,6 Km
Ristoranti Ristoranti
Pizza Kebap
530 m
La Lanterna
690 m
Trattoria La Ruota
970 m
Ristoranti
1,0 Km
Pizzeria ai due soli
1,4 Km
Mostra tutto

Caratteristiche

Rif.:
61144708
Piano:
Terra di 6
Totale piani:
6
Posti auto:
40
Condizionamento:
Autonomo
Ascensore:
No
Mostra tutto
Prezzo Prezzo
€ 355.000
Rata mutuo Rata mutuo
€ 1.676 / mese
Spese annue Spese annue
€ 3.000
Anche in affitto a
Proponi il tuo prezzoProponi il tuo prezzo

Classe Energetica

Questo immobile è esente da classe energetica
Anno di costruzione:
2018
Riscaldamento:
Autonomo
Tipo impianto:
A pavimento
Tipo alimentazione:
Altro

Ti interessa visionare l'immobile?

Fissa un appuntamento  Fissa un appuntamento

Richiedi informazioni

Clicca su Leggi per aprire l'informativa
* Questi campi sono obbligatori

Calcola il tuo mutuo

Semplice e senza impegno
Anticipo

( % )
Mutuo

( % )

pochi semplici passi

inserisci i tuoi dati
Questionario completato
Grazie per aver richiesto un appuntamento senza impegno con un nostro Consulente del Credito e Assicurativo.

Hai inserito correttamente tutti i dati necessari e a breve riceverai una e-mail con un link da convalidare per inviare i tuoi dati.
Affiliato
Industriale Ambrogio Srl
Via A. Cechov, 3 20098 San Giuliano Milanese (MI)

Il nostro staff


  • Leonardo Ghiani
    Collaboratore

  • Denise Santostefano
    Coordinatrice

  • Mirko Francesco Santostefano
    Collaboratore

  • Alexandru George Receanu
    Affiliato
Via A. Cechov, 3 20098 San Giuliano Milanese (MI)
Zona: San Giuliano Milanese
Mostra su mappa
Affiliato
Industriale Ambrogio Srl
Via A. Cechov, 3 20098 San Giuliano Milanese (MI)

2025 Tecnocasa Franchising S.p.A. - P. IVA 08365160152 - Via Monte Bianco 60/A 20089 Rozzano (MI). Ogni agenzia ha un proprio titolare ed è autonoma. Privacy policy | Policy utilizzo | Cookie policy