 
			 
				COSA SAPERE DELL'IMMOBILE
Proponiamo in locazione un ufficio di circa 65 metri quadrati, disposto al primo piano di una palazzina di quattro livelli.
DESCRIZIONE E PARTICOLARITA'
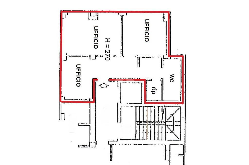
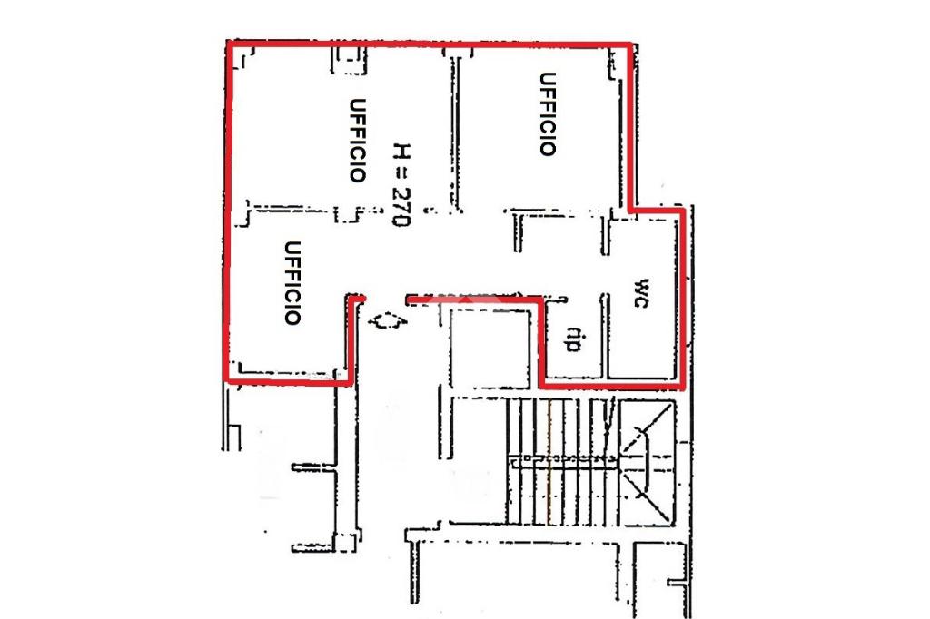
L'ufficio proposto in locazione ha una superficie complessiva di circa 65 metri quadrati ed è situato al primo piano di un condominio di quattro livelli, raggiungibile tramite comodo ascensore che rende la struttura e il locale accessibile anche a persone con disabilità.
L’immobile, accessibile tramite porta blindata, risulta essere diviso in tre locali aventi 2,7 metri di altezza e possedere un comodo servizio igienico privato a norma disabili.
Il locale è dotato degli impianti elettrico, d'illuminazione, nonché di riscaldamento e condizionamento centralizzato, risulta inoltre essere cablato e possedere internet a banda larga.
UBICAZIONE E CONTESTO
L’ufficio è ubicato nella zona residenziale del Comune di San Giuliano Milanese, facilmente raggiungibile in auto data la vicinanza alla strada statale 9 (Via Emilia) che si collega ai paesi limitrofi. Possiede inoltre circa quaranta posti auto PUBBLICI nelle immediate vicinanze.
Ti interessa visionare l'immobile?