Capannone in affitto

Vellezzo Bellini, Via S. Bartolomeo Apostolo
4 locali 4 locali
1000 Mq 1000 Mq
2 bagni 2 bagni

Capannone in affitto

Vellezzo Bellini, Via S. Bartolomeo Apostolo

Descrizione annuncio

COSA SAPERE DELL'IMMOBILE

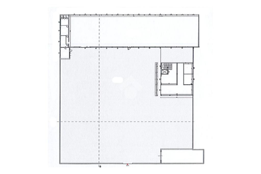
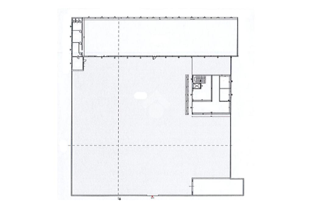
Proponiamo in locazione un capannone di circa 1.000 metri quadrati con annessa area esterna condivisa di 3.000 metri quadrati.

DESCRIZIONE E PARTICOLARITA'

La soluzione proposta in locazione si sviluppa su una superficie calpestabile di circa 1.000 mq, divisa in 950 metri quadrati di capannone e 50 metri quadrati di spazio direzionale (il solo spazio direzionale è dotato degli impianti di riscaldamento e condizionamento tramite split), il tutto distribuito su un’unica campata libera da pilastri, con altezza interna di 6,7 metri (3,7 metri sotto trave).

L’immobile, accessibile tramite due portoni di 3,3 metri, è dotato di impianto elettrico e di illuminazione, nonché da impianto d’allarme. Completano la soluzione due comodi servizi igienici privati dotati di spogliatoi con annesse comode docce per favorire un’ulteriore comodità ai dipendenti.

Esternamente troviamo 3.000 metri quadrati di area esterna privata e recintata.

UBICAZIONE E CONTESTO

Il complesso si trova nella zona residenziale del Comune di Vellezzo Bellini, possiede circa 20 posti auto PUBBLICI nelle immediate VICINANZE.

Mostra tutto

Nelle vicinanze

Trasporto pubblico Trasporto pubblico
Trasporto pubblico
1,8 Km
Scuole Scuole
Scuole
730 m
Scuola elementare
2,6 Km
Scuola Media
2,7 Km
Farmacia Farmacia
Farmacia
2,8 Km
Ospedali Ospedali
Poliambulatorio - Sede ASL
2,7 Km
Bar Bar
Bar
3,0 Km
Ristoranti Ristoranti
Agriturismo Granai Certosa
1,4 Km
Agriturismo Cascina Fiamberta
2,0 Km
Mostra tutto

Caratteristiche

Rif.:
61170639
Piano:
Terra di 1
Totale piani:
1
Posti auto:
20
Condizionamento:
Autonomo
Ascensore:
No
Mostra tutto
Prezzo Prezzo
€ 5.000 / mese
Spese annue Spese annue
€ 0
Anche in vendita a

Classe Energetica

Questo immobile è esente da classe energetica
Anno di costruzione:
1994
Riscaldamento:
Autonomo
Tipo impianto:
Ad aria
Tipo alimentazione:
Aria

Ti interessa visionare l'immobile?

Fissa un appuntamento  Fissa un appuntamento

Richiedi informazioni

Clicca su Leggi per aprire l'informativa
* Questi campi sono obbligatori
Affiliato
Industriale Ambrogio Srl
Via A. Cechov, 3 20098 San Giuliano Milanese (MI)

Il nostro staff


  • Leonardo Ghiani
    Responsabile

  • Denise Santostefano
    Coordinatrice

  • Mirko Francesco Santostefano
    Collaboratore

  • Alexandru George Receanu
    Affiliato
Via A. Cechov, 3 20098 San Giuliano Milanese (MI)
Zona: San Giuliano Milanese
Mostra su mappa
Affiliato
Industriale Ambrogio Srl
Via A. Cechov, 3 20098 San Giuliano Milanese (MI)

2026 Tecnocasa Franchising S.p.A. - P. IVA 08365160152 - Via Monte Bianco 60/A 20089 Rozzano (MI). Ogni agenzia ha un proprio titolare ed è autonoma. Privacy policy | Policy utilizzo | Cookie policy